Ngôi nhà tối giản sở hữu hai khu vườn xanh mát

Nhà D9 được xây dựng trên tinh thần tối giản, có hai khu vườn phía trước và sau nhà khiến không gian thoáng đãng và mát mẻ hơn.

Ngoi nha toi gian so huu hai khu vuon xanh mat

Nhà D9 có 3 tầng, tổng diện tích sàn là 560m2, tọa lạc tại TP Hồ Chí Minh.

Nhà D9 được xây dựng trên mảnh đất có diện tích 207m2. Thiết kế gồm 3 tầng, với bốn phòng ngủ, và các phòng chức năng khác như gara, phòng khách, phòng ăn, bếp,… Tổng diện tích sàn là 560m2.

Ngoi nha toi gian so huu hai khu vuon xanh mat-Hinh-2

Không gian mở trong ngôi nhà mang đến sự thông gió tự nhiên.

Ngoi nha toi gian so huu hai khu vuon xanh mat-Hinh-3

Phòng khách đầy đủ tiện nghi là nơi đón tiếp và tụ tập bạn bè của gia chủ.

Ngoi nha toi gian so huu hai khu vuon xanh mat-Hinh-4

Phòng khách, phòng bếp, bàn ăn liên thông với nhau, tạo sự kết nối giữa các thành viên trong gia đình.

Ngoi nha toi gian so huu hai khu vuon xanh mat-Hinh-5

Mặt bằng tầng trệt ngôi nhà.

Toàn bộ tầng trệt là không gian sinh hoạt chung của gia đình, gồm phòng khách, phòng bếp, bàn ăn. Đây cũng không gian được khai thác linh hoạt, để làm nơi tiệc tùng và tụ tập bạn bè. Nhà để xe cũng được kết hợp với các khu vực bên trong khác để mở rộng hơn nữa không gian sống.

Ngoi nha toi gian so huu hai khu vuon xanh mat-Hinh-6

Ánh sáng kết hợp kiến trúc khối tạo nên những ấn tượng khó quên về không gian của nhà D9.

Ngoi nha toi gian so huu hai khu vuon xanh mat-Hinh-7

Tông màu trắng kết hợp nâu trầm và đen mang đến vẻ đẹp hiện đại cho ngôi nhà.

Ngoi nha toi gian so huu hai khu vuon xanh mat-Hinh-8

Khu vực đệm ở ngay cầu thang dành cho các sinh hoạt chung của gia đình.

Ngoi nha toi gian so huu hai khu vuon xanh mat-Hinh-9

Phòng ngủ tràn ngập ánh sáng, khiến không gian thêm ấm áp.

Ngoi nha toi gian so huu hai khu vuon xanh mat-Hinh-10

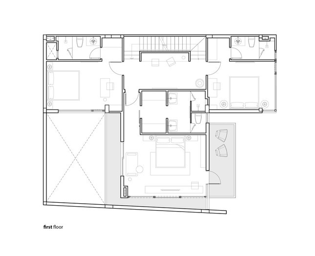
Mặt bằng tầng 2 ngôi nhà.

Tầng thứ 2 có 3 phòng ngủ, tất cả đều có góc tiếp xúc tự nhiên tùy vị trí. Khu vực đệm ở ngay cầu thang trở thành khu vực sinh hoạt chung ở trên lầu. Phần diện tích còn lại vừa đủ để thêm một phòng ngủ nữa. Thiết kế trong phòng ngủ cũng theo tinh thần tối giản như khu vực tầng trệt.

Bức tường chính ở đầu giường làm bằng vật liệu đá tự nhiên. Ánh sáng được tích hợp để cân bằng và mang lại cảm giác ấm áp cần thiết cho không gian ngủ.

Ngoi nha toi gian so huu hai khu vuon xanh mat-Hinh-11

Ban công kính mở ra tầm nhìn thoáng đãng phía trước nhà.

Ngoi nha toi gian so huu hai khu vuon xanh mat-Hinh-12

Ban công kính mở ra tầm nhìn thoáng đãng phía trước nhà.

Ngoi nha toi gian so huu hai khu vuon xanh mat-Hinh-13

Cây xanh mang đến không khí trong lành cho ngôi nhà.

Ngoi nha toi gian so huu hai khu vuon xanh mat-Hinh-14

Khu vực cây xanh kết hợp hồ nước ngọt là nơi thư giãn nghỉ ngơi.

Ngoi nha toi gian so huu hai khu vuon xanh mat-Hinh-15

Sân trước là một khu vườn thu nhỏ với đa dạng cây trái.

Ngoi nha toi gian so huu hai khu vuon xanh mat-Hinh-16

Cửa kính đẩy thay thế các bức tường, tạo nên sự thông thoáng tự nhiên.

Ngôi nhà còn có những khu vực cây xanh, cùng với một hồ nước ngọt. Khu vực này dùng để làm nơi thư giãn và nghỉ ngơi cho chủ nhà. Các bức tường được thay thế bằng cửa kính đẩy, giúp ngôi nhà luôn thông thoáng. Không khí trong lành và ánh sáng tự nhiên luôn có thể len lỏi vào các phòng chức năng với loại cửa kính này.

Ngoi nha toi gian so huu hai khu vuon xanh mat-Hinh-17

Khu vườn phía sau kết hợp với giàn dây leo khiến khu vực tầng trệt gần gũi với thiên nhiên hơn.

Ngoi nha toi gian so huu hai khu vuon xanh mat-Hinh-18

Giàn dây leo lên được trang trí phía sau tầng 2 và 3, tạo khung cảnh xanh cho các phòng ngủ.

Khu vườn phía sau với giàn dây leo không chỉ mang lại cảm giác gần gũi với thiên nhiên cho không gian sinh hoạt chung ở tầng trệt mà còn tạo ra một khung cảnh xanh cho các phòng ngủ ở tầng trên.

Nhà D9 được thiết kế và xây dựng trên tinh thần tối giản, nội thất được lựa chọn kĩ càng với những đường nét rõ ràng, ít chi tiết và số lượng vừa phải.

Ngoi nha toi gian so huu hai khu vuon xanh mat-Hinh-19

Không gian "xanh" vừa tạo điểm nhấn, vừa là nơi thư giãn của gia chủ.

Nếu toàn bộ khu tầng trệt là để dùng cho không gian sinh hoạt chung thì các tầng còn lại là không gian riêng tư cho các thành viên trong gia đình. Không gian “xanh” mát mẻ vừa là điểm nhấn tăng vẻ đẹp cho ngôi nhà vừa là nơi để gia chủ thư giãn và tận hưởng cuộc sống.

 

Đọc nhiều nhất