Kì lạ ngôi nhà dùng cả con thuyền để làm phòng ngủ

Điểm nhấn độc đáo của ngôi nhà là chiếc thuyền lớn được treo bằng hệ thống khung thép chắc chắn với 2 phòng ngủ lớn phía trên thuyền và 2 phòng ngủ nhỏ hơn rất thoáng mát phía dưới thuyền.

Ki la ngoi nha dung ca con thuyen de lam phong ngu

Ngôi nhà này tên là Sóc's House, được xây dựng trên diện tích 70 m2 trong một con hẻm có view lên núi, cách biển khoảng 600 m.

Ki la ngoi nha dung ca con thuyen de lam phong ngu-Hinh-2

Ngôi nhà được xây dựng theo phong cách nghỉ dưỡng vô cùng khác biệt, ấm áp giữa lòng phố du lịch đông đúc và nhộn nhịp. Do nhà gần biển, lại nằm trong khu vực nhiều khách du lịch trong và ngoài nước lưu trú nên chủ nhân đã dành nhà để kinh doanh homestay.

Ki la ngoi nha dung ca con thuyen de lam phong ngu-Hinh-3

Kết cấu nhà gồm 3 lầu và 1 sân thượng với 5 phòng ngủ, 6 WC. Với mong muốn tầng 1 có sự khác biệt so với các tầng còn lại, kiến trúc sư đã thiết kế mái che bao bọc xung quanh nhà với nhiều cây xanh và hoa kết hợp hệ thống khung sắt và lưới rất độc đáo.

Ki la ngoi nha dung ca con thuyen de lam phong ngu-Hinh-4

Các phòng ngủ, toilet, bếp, sinh hoạt chung được thiết kế thoáng mát, đón nắng tự nhiên và nhiều cây xanh xung quanh.

Ki la ngoi nha dung ca con thuyen de lam phong ngu-Hinh-5
Ki la ngoi nha dung ca con thuyen de lam phong ngu-Hinh-6
Ki la ngoi nha dung ca con thuyen de lam phong ngu-Hinh-7

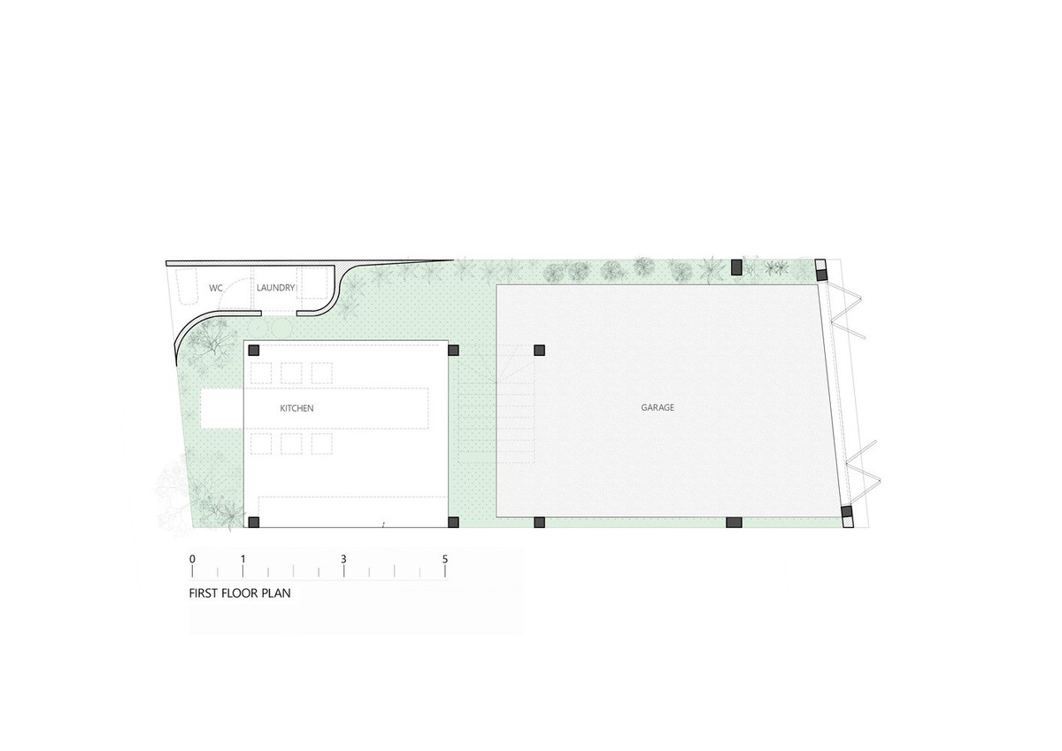
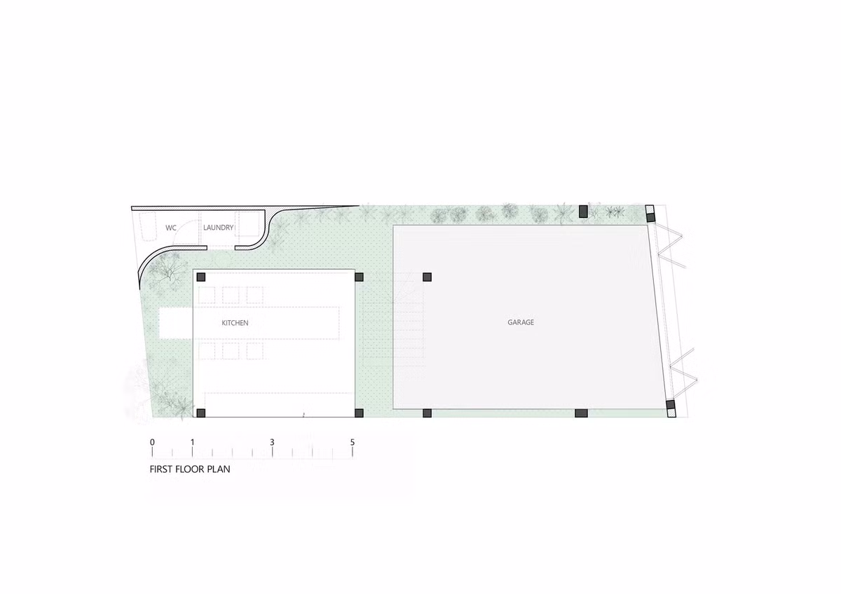
Tầng 1 gồm sân để xe và khu bếp ăn chung. Trong đó, kiến trúc sư thiết kế khu bếp ăn với không gian mở hoàn toàn mời thiên nhiên vào nhà.

Ki la ngoi nha dung ca con thuyen de lam phong ngu-Hinh-8

Tầng 2 có điểm nhấn độc đáo là chiếc thuyền lớn được treo bằng hệ thống khung thép chắc chắn với 2 phòng ngủ lớn phía trên thuyền và 2 phòng ngủ nhỏ hơn rất thoáng mát phía dưới thuyền.

Ki la ngoi nha dung ca con thuyen de lam phong ngu-Hinh-9

Tầng 2 có điểm nhấn độc đáo là chiếc thuyền lớn được treo bằng hệ thống khung thép chắc chắn với 2 phòng ngủ lớn phía trên thuyền và 2 phòng ngủ nhỏ hơn rất thoáng mát phía dưới thuyền.

Ki la ngoi nha dung ca con thuyen de lam phong ngu-Hinh-10

Với tông màu sơn giống như một chiếc thuyền thật và chất liệu gỗ thô mộc bên trong phòng ngủ khiến cho những vị khách lưu trú trên thuyền có cảm giác như đang ra khơi.

Ki la ngoi nha dung ca con thuyen de lam phong ngu-Hinh-11
Ki la ngoi nha dung ca con thuyen de lam phong ngu-Hinh-12

Tầng 3 có hai phòng duplex rộng có ban công bao quanh là cây xanh, bên ngoài có lớp lưới ruồi che khuất tầm nhìn vào trong phòng.

Ki la ngoi nha dung ca con thuyen de lam phong ngu-Hinh-13
Ki la ngoi nha dung ca con thuyen de lam phong ngu-Hinh-14

Tầng thượng gồm một sân chung phía trước view Tượng Chúa Kitô dang tay và 1 phòng duplex lớn phía sau view núi lớn cùng ngọn hải đăng. Điểm nhấn của căn phòng là kết cấu mái ngói đất nung cổ kính bên trên và những bức tường kính cao xung quanh, để lộ ra khung cảnh thiên nhiên tươi đẹp và lãng mạn của ngọn núi rộng lớn và ngọn hải đăng phía sau.

Ki la ngoi nha dung ca con thuyen de lam phong ngu-Hinh-15
Ki la ngoi nha dung ca con thuyen de lam phong ngu-Hinh-16
Ki la ngoi nha dung ca con thuyen de lam phong ngu-Hinh-17
Ki la ngoi nha dung ca con thuyen de lam phong ngu-Hinh-18

Một không gian đối lập với cuộc sống tĩnh lặng ẩn sau những bức tường bê tông thô mộc nhưng không kém phần sang trọng và độc đáo. Người trong nhà sẽ được thưởng thức một cách trọn vẹn nhất vẻ đẹp của căn phòng và ngôi nhà.

Theo Archdaily/H-2

Đọc nhiều nhất