Căn nhà nhiều cửa sổ lạ mắt giống lồng chim giữa con hẻm Sài Gòn

Căn nhà nhiều cửa sổ lạ mắt giống lồng chim giữa con hẻm Sài Gòn

Một căn nhà có thiết kế nổi bật với nhiều cửa sổ lớn tạo cho người xem cảm giác như chiếc lồng chim khổng lồ giữa con hẻm nhỏ tại TP.HCM.

Công trình được thiết kế bởi Sanuki Daisuke architects. Những cửa sổ với họa tiết song cửa độc đáo giúp căn nhà bắt mắt khi nhìn từ bên ngoài.
Công trình được thiết kế bởi Sanuki Daisuke architects. Những cửa sổ với họa tiết song cửa độc đáo giúp căn nhà bắt mắt khi nhìn từ bên ngoài.
Khoảng cách giữa căn nhà với hàng xóm chỉ chưa đầy 1 m nên các kiến trúc sư phải rất đắn đo với tính riêng tư của thiết kế.
Khoảng cách giữa căn nhà với hàng xóm chỉ chưa đầy 1 m nên các kiến trúc sư phải rất đắn đo với tính riêng tư của thiết kế.
Phòng bếp và phòng khách được đặt tại tầng hai của căn nhà. Bếp và phòng khách được chia tách bằng màu nội thất.
Phòng bếp và phòng khách được đặt tại tầng hai của căn nhà. Bếp và phòng khách được chia tách bằng màu nội thất.
Phòng bếp và phòng khách được đặt tại tầng hai của căn nhà. Bếp và phòng khách được chia tách bằng màu nội thất.
Phòng bếp và phòng khách được đặt tại tầng hai của căn nhà. Bếp và phòng khách được chia tách bằng màu nội thất.
Khi đi từ tầng một lên sẽ tới ngay không gian bếp, tiện lợi cho thành viên cao tuổi trong gia đình sống ở tầng một.
Khi đi từ tầng một lên sẽ tới ngay không gian bếp, tiện lợi cho thành viên cao tuổi trong gia đình sống ở tầng một.
Nhiều chi tiết tường của công trình được để thô, không sơn.
Nhiều chi tiết tường của công trình được để thô, không sơn.
Phòng ngủ chính của căn hộ sở hữu nhiều cửa sổ lớn giúp đón ánh sáng tự nhiên.
Phòng ngủ chính của căn hộ sở hữu nhiều cửa sổ lớn giúp đón ánh sáng tự nhiên.
Căn phòng ấm cúng nhờ sử dụng nhiều nội thất gỗ.
Căn phòng ấm cúng nhờ sử dụng nhiều nội thất gỗ.
Cầu thang chính của căn nhà được trang trí bằng sách, giúp khách tới thăm nhà phần nào đoán được văn hóa đọc của chủ nhà.
Cầu thang chính của căn nhà được trang trí bằng sách, giúp khách tới thăm nhà phần nào đoán được văn hóa đọc của chủ nhà.
Tầng thượng là một vườn cây nhỏ ngoài trời và phòng làm việc.
Tầng thượng là một vườn cây nhỏ ngoài trời và phòng làm việc.
Nhiều cây nhỏ được đặt trong hộc tường.
Nhiều cây nhỏ được đặt trong hộc tường.
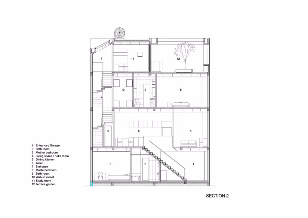
Mặt cắt ngang công trình.
Mặt cắt ngang công trình.

GALLERY MỚI NHẤT

Hàng nghìn người hưởng ứng “Hành động Xanh - Chọn tương lai Xanh”

Hàng nghìn người hưởng ứng “Hành động Xanh - Chọn tương lai Xanh”

Sáng 4/4, hàng nghìn người dân và thanh niên trên khắp cả nước cùng tham gia hoạt động dọn dẹp vệ sinh khu phố và thu gom đồ dùng cũ, hưởng ứng lời kêu gọi “Hành động Xanh - Chọn tương lai Xanh” do Quỹ Vì Tương lai xanh do Tập đoàn Vingroup phát động. Đây là một trong những hoạt động tiêu biểu mở màn cho chuỗi chiến dịch “Thứ 4 Ngày Xanh” được Quỹ triển khai xuyên suốt năm 2026 với thông điệp “Hành động Xanh - Chọn tương lai Xanh”.