Căn hộ duplex độc đáo thiết kế hình khối, ốp đá mài kiểu Mỹ

Căn hộ duplex độc đáo thiết kế hình khối, ốp đá mài kiểu Mỹ

Căn hộ duplex với thiết kế về hình học và phong cách sử dụng vật liệu terrazzo nằm trong một khu đô thị tại TPHCM.

Chủ của căn hộ thích lối thiết kế hiện đại, phong cách của phương Tây nhưng được biến hóa để phù hợp với thời tiết nhiệt đới gió mùa của Việt Nam (Ảnh: Dezeen).
Chủ của căn hộ thích lối thiết kế hiện đại, phong cách của phương Tây nhưng được biến hóa để phù hợp với thời tiết nhiệt đới gió mùa của Việt Nam (Ảnh: Dezeen).
Chủ nhà rất ấn tượng với những công trình độc đáo về hình khối của kiến trúc sư nổi tiếng người Mỹ Louis Kahn (Ảnh: Dezeen).
Chủ nhà rất ấn tượng với những công trình độc đáo về hình khối của kiến trúc sư nổi tiếng người Mỹ Louis Kahn (Ảnh: Dezeen).
Những yêu cầu về thiết kế của chủ nhà khá khó thực hiện đối với một căn hộ duplex đã có sẵn kết cấu (Ảnh: Dezeen).
Những yêu cầu về thiết kế của chủ nhà khá khó thực hiện đối với một căn hộ duplex đã có sẵn kết cấu (Ảnh: Dezeen).
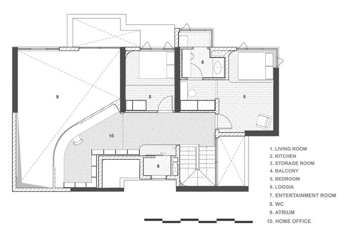
Đối với mặt bằng 200m2 tầng 1, đội ngũ kiến trúc sư gần như không thể thay đổi được cấu trúc. Do đó họ quyết định thiết kế các khu vực sinh hoạt khác bằng sử dụng hình khối - phù hợp với cảm hứng phong cách kiến trúc của Kahn (Ảnh: Dezeen).
Đối với mặt bằng 200m2 tầng 1, đội ngũ kiến trúc sư gần như không thể thay đổi được cấu trúc. Do đó họ quyết định thiết kế các khu vực sinh hoạt khác bằng sử dụng hình khối - phù hợp với cảm hứng phong cách kiến trúc của Kahn (Ảnh: Dezeen).
Toàn bộ cửa phòng, lối đi trong căn hộ đều được làm dạng vòm (Ảnh: Dezeen).
Toàn bộ cửa phòng, lối đi trong căn hộ đều được làm dạng vòm (Ảnh: Dezeen).
Điểm nhấn của căn hộ là khối cong nhô ra từ khu vực sinh hoạt chung cùng với cửa sổ khổng lồ tại phòng làm việc của tầng 2 (Ảnh: Dezeen).
Điểm nhấn của căn hộ là khối cong nhô ra từ khu vực sinh hoạt chung cùng với cửa sổ khổng lồ tại phòng làm việc của tầng 2 (Ảnh: Dezeen).
Nhà bếp tại tầng 1, bàn ăn, nền nhà, cầu thang được chế tác từ những khối đá cẩm thạch lớn màu trắng đen (Ảnh: Dezeen).
Nhà bếp tại tầng 1, bàn ăn, nền nhà, cầu thang được chế tác từ những khối đá cẩm thạch lớn màu trắng đen (Ảnh: Dezeen).
Vật liệu được sử dụng theo phong cách terrazzo, đá cẩm thạch hoặc đá granit được đánh bóng, khảm vào tường, cầu thang và nền nhà (Ảnh: Dezeen).
Vật liệu được sử dụng theo phong cách terrazzo, đá cẩm thạch hoặc đá granit được đánh bóng, khảm vào tường, cầu thang và nền nhà (Ảnh: Dezeen).
Cầu thang được thiết kế uốn lượn và ốp đá (Ảnh: Dezeen).
Cầu thang được thiết kế uốn lượn và ốp đá (Ảnh: Dezeen).
Phòng làm việc tầng 2 với cửa sổ bán nguyệt lớn (Ảnh: Dezeen).
Phòng làm việc tầng 2 với cửa sổ bán nguyệt lớn (Ảnh: Dezeen).
Phòng ngủ được ốp trần thạch cao uốn cong (Ảnh: Dezeen).
Phòng ngủ được ốp trần thạch cao uốn cong (Ảnh: Dezeen).