Nhà sàn cực chất của 1 họa sĩ ở ngoại ô TP.HCM

Nhà sàn cực chất của 1 họa sĩ ở ngoại ô TP.HCM

Cầu thang ngoài trời được thiết kế như một tác phẩm điêu khắc nối với sân trong.

Sau bao năm sống ở trung tâm thành phố, họa sĩ Đỗ Hoàng Tường muốn chuyển ra ngoại ô TP.HCM để có không khí trong lành và không gian sáng tạo nghệ thuật.
Sau bao năm sống ở trung tâm thành phố, họa sĩ Đỗ Hoàng Tường muốn chuyển ra ngoại ô TP.HCM để có không khí trong lành và không gian sáng tạo nghệ thuật.
Khu đất này được ngăn cách với con đường rợp bóng mát bởi một con kênh nối với sông Sài Gòn.
Khu đất này được ngăn cách với con đường rợp bóng mát bởi một con kênh nối với sông Sài Gòn.
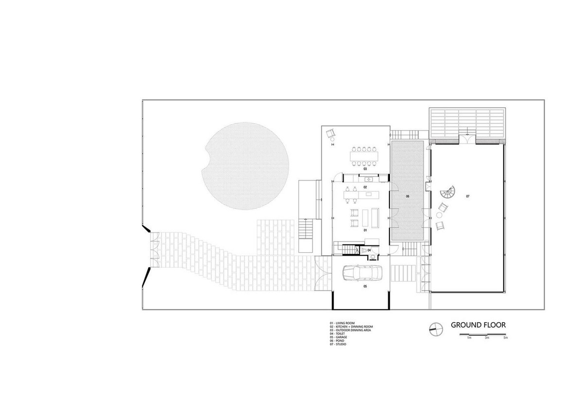
Kiến trúc sư Truong An Architecture thiết kế ngôi nhà sàn 300 m² hiện đại, bao gồm hai khối nhà hình chữ nhật với hai ao tự nhiên nối trực tiếp với kênh.
Kiến trúc sư Truong An Architecture thiết kế ngôi nhà sàn 300 m² hiện đại, bao gồm hai khối nhà hình chữ nhật với hai ao tự nhiên nối trực tiếp với kênh.
Tầng trệt của khối nhà chính đã được nâng lên 1,8 m so với mặt đất tự nhiên.
Tầng trệt của khối nhà chính đã được nâng lên 1,8 m so với mặt đất tự nhiên.
Tất cả các đồ nội thất được thiết kế cẩn thận để phù hợp với ý tưởng của ngôi nhà.
Tất cả các đồ nội thất được thiết kế cẩn thận để phù hợp với ý tưởng của ngôi nhà.
Trong khối studio, các cửa sổ ruy băng được thiết kế ở trên cùng và dưới cùng của bức tường để tạo sự thông thoáng.
Trong khối studio, các cửa sổ ruy băng được thiết kế ở trên cùng và dưới cùng của bức tường để tạo sự thông thoáng.
Khoảng thông tầng lớn trong không gian bên trong kết nối với các không gian khác trong nhà và hướng ra thiên nhiên ngoài trời.
Khoảng thông tầng lớn trong không gian bên trong kết nối với các không gian khác trong nhà và hướng ra thiên nhiên ngoài trời.
Kiến trúc sư sử dụng vật liệu có kết cấu nhẹ giúp giảm tải trọng cho nền đất yếu, giảm chi phí.
Kiến trúc sư sử dụng vật liệu có kết cấu nhẹ giúp giảm tải trọng cho nền đất yếu, giảm chi phí.
Hệ thống cửa sổ kính suốt từ trần đến sàn với thiết kế linh hoạt đón nắng và gió đến tất cả các phòng.
Hệ thống cửa sổ kính suốt từ trần đến sàn với thiết kế linh hoạt đón nắng và gió đến tất cả các phòng.
Mái tôn hai lớp giúp tăng cường độ thông thoáng và giảm tiếng ồn cho các phòng ngủ.
Mái tôn hai lớp giúp tăng cường độ thông thoáng và giảm tiếng ồn cho các phòng ngủ.
Mặt bằng tầng trệt
Mặt bằng tầng trệt
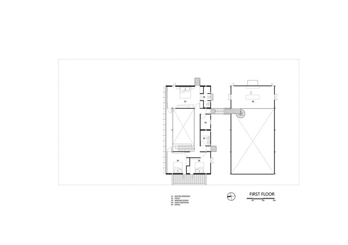
Mặt bằng tầng một
Mặt bằng tầng một