Ngôi nhà nhỏ đầy ấm cúng ở xử sở ngàn hoa

Ngôi nhà nhỏ đầy ấm cúng ở xử sở ngàn hoa

Ngôi nhà nhỏ ở xứ ngàn hoa Đà Lạt được thiết kế đầy đủ công năng sử dụng, đón ánh sáng tự nhiên mang lại sự ấm cúng là sợi giây kết nối giữa các thành viên trong gia đình.

Ý tưởng thiết kế xuất phát từ mong muốn ngôi nhà đầy đủ chức năng cơ bản và đơn giản, nhưng mang lại cảm giác ấm áp và gần gũi.
Ý tưởng thiết kế xuất phát từ mong muốn ngôi nhà đầy đủ chức năng cơ bản và đơn giản, nhưng mang lại cảm giác ấm áp và gần gũi.
Từ yêu cầu đó, các kiến trúc sư đã thiết kế một không gian nơi các thành viên trong gia đình có thể dễ dàng nhìn thấy nhau và cùng chung sống.
Từ yêu cầu đó, các kiến trúc sư đã thiết kế một không gian nơi các thành viên trong gia đình có thể dễ dàng nhìn thấy nhau và cùng chung sống.
Sân thoáng trước nhà.
Sân thoáng trước nhà.
Cảm giác ấm áp là mục tiêu chính của thiết kế, vì vậy mọi phòng đều có ánh sáng tự nhiên, từ phòng khách, bếp, hành lang và phòng ngủ.
Cảm giác ấm áp là mục tiêu chính của thiết kế, vì vậy mọi phòng đều có ánh sáng tự nhiên, từ phòng khách, bếp, hành lang và phòng ngủ.
Nội thất đơn giản với gỗ tự nhiên, kết hợp với gam màu trắng.
Nội thất đơn giản với gỗ tự nhiên, kết hợp với gam màu trắng.
Sàn nhà làm giảm cảm giác “tĩnh” của một ngôi nhà đơn sắc, thêm tranh và vân gỗ tự nhiên.
Sàn nhà làm giảm cảm giác “tĩnh” của một ngôi nhà đơn sắc, thêm tranh và vân gỗ tự nhiên.
Ngôi nhà có thiết kế khá đơn giản, phù hợp với khí hậu lạnh của Đà Lạt. Mái có ánh sáng tự nhiên vào trong nhà.
Ngôi nhà có thiết kế khá đơn giản, phù hợp với khí hậu lạnh của Đà Lạt. Mái có ánh sáng tự nhiên vào trong nhà.
Các phòng có thể nhìn thấy nhau.
Các phòng có thể nhìn thấy nhau.
Với thời tiết lạnh đặc trưng của thành phố Đà Lạt, vào sáng sớm và buổi tối, hệ thống sàn hai lớp, gạch dưới và gỗ trên phòng ngủ mang lại cảm giác ấm áp cho chủ nhà vào mùa lạnh và cảm giác mát mẻ vào mùa nóng.
Với thời tiết lạnh đặc trưng của thành phố Đà Lạt, vào sáng sớm và buổi tối, hệ thống sàn hai lớp, gạch dưới và gỗ trên phòng ngủ mang lại cảm giác ấm áp cho chủ nhà vào mùa lạnh và cảm giác mát mẻ vào mùa nóng.
Ngôi nhà là sợi dây liên kết giữa các thành viên trong gia đình.
Ngôi nhà là sợi dây liên kết giữa các thành viên trong gia đình.
Phòng ngủ ấm áp vào buổi tối.
Phòng ngủ ấm áp vào buổi tối.
Thiết kế rào thoáng.
Thiết kế rào thoáng.
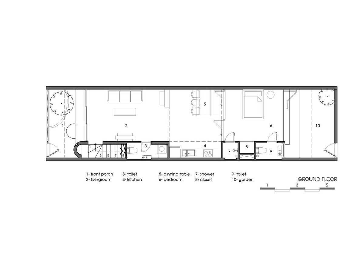
Mặt bằng tầng 1.
Mặt bằng tầng 1.
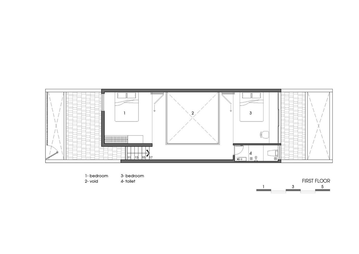
Mặt bằng tầng 2.
Mặt bằng tầng 2.