Ngôi nhà gỗ bên sườn đồi bắt trọn khung cảnh thiên nhiên tuyệt đẹp

Ngôi nhà gỗ bên sườn đồi bắt trọn khung cảnh thiên nhiên tuyệt đẹp

Ngôi nhà gỗ bên sườn đồi là nơi để thoát khỏi những căng thẳng của cuộc sống hàng ngày. Ngôi nhà có kết cấu nhẹ, dễ bảo trì và có thể dễ dàng di chuyển.

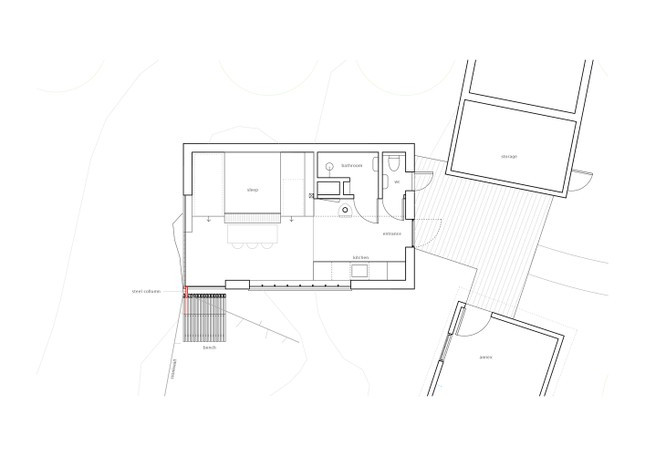
Ngôi nhà nhỏ có kết cấu hoàn toàn bằng gỗ được dựng ở lưng đồi với phần móng là 6 bu-lông được khoan chặt vào đá. Ngôi nhà có đủ các tính năng cần thiết nhất cho cuộc sống sinh hoạt cơ bản.
Ngôi nhà nhỏ có kết cấu hoàn toàn bằng gỗ được dựng ở lưng đồi với phần móng là 6 bu-lông được khoan chặt vào đá. Ngôi nhà có đủ các tính năng cần thiết nhất cho cuộc sống sinh hoạt cơ bản.
Mặt tiền ngôi nhà được thiết kế một khối kính đa giác lệch để vừa bắt trọn được khung cảnh thiên nhiên vừa tránh được các cơn gió mạnh quần thảo trên ngọn đồi.
Mặt tiền ngôi nhà được thiết kế một khối kính đa giác lệch để vừa bắt trọn được khung cảnh thiên nhiên vừa tránh được các cơn gió mạnh quần thảo trên ngọn đồi.
Với phần mặt tiền được thiết kế thú vị và nội thất gỗ ấm cúng, khung cảnh hoàng hôn, rừng cây và hồ nước đẹp siêu thực được chủ nhân ngôi nhà bắt trọn.
Với phần mặt tiền được thiết kế thú vị và nội thất gỗ ấm cúng, khung cảnh hoàng hôn, rừng cây và hồ nước đẹp siêu thực được chủ nhân ngôi nhà bắt trọn.
Với mặt tiền hướng ra phía tây, nhà gỗ luôn sáng lên trong ánh nắng, tạo cảm giác ấm áp và sạch sẽ.
Với mặt tiền hướng ra phía tây, nhà gỗ luôn sáng lên trong ánh nắng, tạo cảm giác ấm áp và sạch sẽ.