Ngôi nhà 20 năm tuổi trên mảnh đất hình tam giác

Ngôi nhà 20 năm tuổi trên mảnh đất hình tam giác

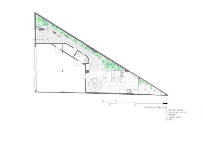
Công trình được cải tạo từ ngôi nhà 20 năm tuổi tại Gò Vấp (TP.HCM), có thiết kế đặc biệt trên mảnh đất hình tam giác vuông.

Chủ nhân ngôi nhà là một gia đình gốc Bắc vào Nam lập nghiệp. Sau 20 năm, ngôi nhà hiện trạng đã xuống cấp. Cô con gái đã trưởng thành muốn cải tạo lại ngôi nhà để làm nơi thư giãn nghỉ ngơi cho bố mẹ.
Chủ nhân ngôi nhà là một gia đình gốc Bắc vào Nam lập nghiệp. Sau 20 năm, ngôi nhà hiện trạng đã xuống cấp. Cô con gái đã trưởng thành muốn cải tạo lại ngôi nhà để làm nơi thư giãn nghỉ ngơi cho bố mẹ.
Khu đất có hình dáng tam giác đặc biệt. Nhưng chính điều tưởng như bất lợi này đã trở thành ý tưởng thiết kế của H.a workshop.
Khu đất có hình dáng tam giác đặc biệt. Nhưng chính điều tưởng như bất lợi này đã trở thành ý tưởng thiết kế của H.a workshop.
Lối vào của ngôi nhà rất hẹp do nằm ở một góc của tam giác.
Lối vào của ngôi nhà rất hẹp do nằm ở một góc của tam giác.
Không gian mở rộng hơn khi tiến vào sâu bên trong.
Không gian mở rộng hơn khi tiến vào sâu bên trong.
Cầu thang xoắn vừa có tác dụng trang trí về hình thức, vừa để tiết kiệm diện tích cho những ngôi nhà nhỏ.
Cầu thang xoắn vừa có tác dụng trang trí về hình thức, vừa để tiết kiệm diện tích cho những ngôi nhà nhỏ.
Căn bếp của Gò Vấp House (tên ngôi nhà) có hệ tủ bếp được xếp sát tường theo độ vát chéo của khu đất.
Căn bếp của Gò Vấp House (tên ngôi nhà) có hệ tủ bếp được xếp sát tường theo độ vát chéo của khu đất.
Do diện tích hạn chế, tầng hai của gia đình là các phòng ngủ. Tầng ba là nhà tắm và sân vườn.
Do diện tích hạn chế, tầng hai của gia đình là các phòng ngủ. Tầng ba là nhà tắm và sân vườn.
Lối lên phòng tắm từ các phòng ngủ nhỏ.
Lối lên phòng tắm từ các phòng ngủ nhỏ.
Tầng ba của ngôi nhà được thiết kế những cửa vòm như cabin tàu điện.
Tầng ba của ngôi nhà được thiết kế những cửa vòm như cabin tàu điện.
Phòng tắm nằm riêng một chỗ, được đục thủng một khoảng tường để lắp kính lấy sáng.
Phòng tắm nằm riêng một chỗ, được đục thủng một khoảng tường để lắp kính lấy sáng.
Phòng ngủ phụ của gia đình.
Phòng ngủ phụ của gia đình.
Phòng thư giãn, đọc sách có cửa hình tam giác mở ra sân thượng.
Phòng thư giãn, đọc sách có cửa hình tam giác mở ra sân thượng.
Khoảng sân nhỏ xinh của ngôi nhà.
Khoảng sân nhỏ xinh của ngôi nhà.

GALLERY MỚI NHẤT