Thiết kế căn hộ 2 phòng ngủ 82m2 nhỏ nhắn nhưng ấm áp

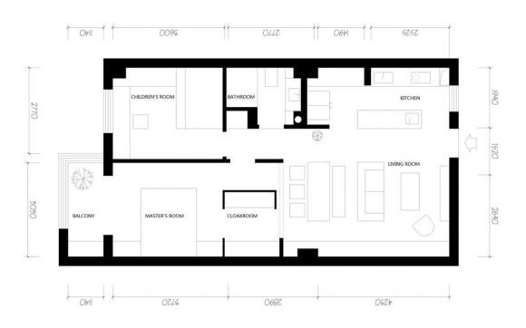
Căn hộ này là căn hộ 2 phòng ngủ với diện tích sử dụng chỉ 82m2. Hiện tại nhà chỉ có một mình chủ ở nên diện tích sử dụng trong nhà vẫn đủ.

Đối với chủ nhân, ngôi nhà này không chỉ là tài sản cố định của riêng mình mà còn là nơi an cư lạc nghiệp. Bố cục ngôi nhà tương đối vuông vức, đều đặn. Gia chủ thường bận đi làm và không có nhiều thời gian trang trí nhà cửa. Vì vậy, gia chủ chọn đội thi công chuyên nghiệp để trang trí.

Thiet ke can ho 2 phong ngu 82m2 nho nhan nhung am ap

Từ khi bắt đầu xây dựng đến khi hoàn thành trang trí, đội ngũ thiết kế đều bận rộn với công việc, điều này cũng giúp gia chủ tiết kiệm được rất nhiều phiền phức. Khi ngôi nhà đã được thiết kế xong, gia chủ cũng rất hài lòng với cách bài trí trong nhà, với sự giản dị ấm áp như ở nhà.

Phòng khách

Căn hộ này đã chọn sự kết hợp màu đen và trắng cổ điển. Mái che phòng khách không làm trần treo mà trang trí bằng các đường kẻ. Các bức tường được bảo vệ bởi các tấm tường trắng. Ghế sofa da màu đen được kết hợp với bàn cà phê kiểu dáng đơn giản màu trắng, tạo nên một không gian tiếp khách thoải mái.

Thiet ke can ho 2 phong ngu 82m2 nho nhan nhung am ap-Hinh-2

Các tấm tường ở một bên của phòng khách thực sự là một dãy tủ lưu trữ ẩn, có thể được sử dụng để đặt một số đồ lặt vặt và cũng tăng không gian lưu trữ trong nhà. Các tủ lưu trữ mở màu đen ở giữa cũng nâng cao cảm giác phân cấp và thiết kế.

Phòng ăn

Phòng ăn được thiết kế ngay phía sau ghế sofa trong phòng khách. Thiết kế mở giúp không gian thông thoáng hơn. Những chiếc ghế gỗ hình chữ nhật khiến không gian trở nên tự nhiên hơn.

Phòng bếp

Nhà bếp cũng là một thiết kế mở. Thông thường chủ nhà ít khi nấu ăn tại nhà nên nhu cầu về bếp hiện nay là không lớn. Tuy nhiên, khi nhà bếp được trang trí, rất nhiều thiết bị và đồ dùng nhà bếp được chuẩn bị. Tất cả các thiết bị được đặt trong tủ. Toàn bộ không gian trong nhà bếp đều gọn gàng và ngăn nắp.

Thiet ke can ho 2 phong ngu 82m2 nho nhan nhung am ap-Hinh-3

Phòng ngủ

Phòng ngủ chọn những mảng tường gỗ chắc chắn. Gỗ nguyên khối ấm áp và ẩm ướt tạo nên một không gian nghỉ ngơi thoải mái và trang nhã. Hầu hết nội thất đều mang phong cách nhẹ nhàng, phù hợp với cá tính và sở thích của gia chủ.

Phòng ngủ và ban công thông nhau nên phòng ngủ nhỏ xanh tươi sẽ tiếp thêm sinh khí và sức sống. Nó sẽ không làm cho mọi người cảm thấy rằng phòng ngủ quá buồn tẻ, mà thấy có một sức sống trẻ trung.

Thiet ke can ho 2 phong ngu 82m2 nho nhan nhung am ap-Hinh-4

Đọc nhiều nhất