Cuộc đua của 2 nhà thầu
Theo Hệ thống mạng đấu thầu quốc gia (muasamcong.mpi.gov.vn), ngày 6/5/2024, Ban Quản lý dự án đầu tư xây dựng TP. Bà Rịa (tỉnh Bà Rịa – Vũng Tàu) đã hoàn thành mở thầu Gói thầu số 1 (xây lắp), phường Kim Dinh), thuộc Dự án Cải tạo, nâng cấp các tuyến hẻm, trên địa bàn các phường Kim Dinh, Long Hương, Phước Hiệp, Phước Hưng năm 2024, có giá 5,562 tỷ đồng.
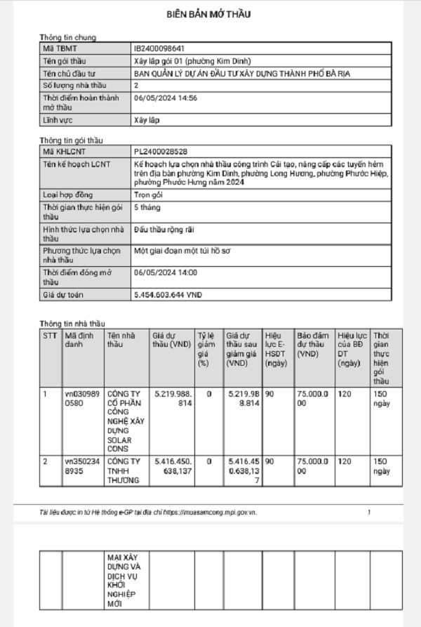
![]() |
| Biên bản mở thầu (Nguồn: MSC) |
Được biết, gói thầu thuộc Dự án Cải tạo, nâng cấp các tuyến hẻm, trên địa bàn các phường Kim Dinh, Long Hương, Phước Hiệp, Phước Hưng năm 2024, có tổng mức đầu tư hơn 14,995 tỷ đồng. Dự án được đầu tư nhằm nâng cấp các tuyến hẻm, trên địa bàn thành phố; nguồn vốn thực hiện được trích từ nguồn vốn ngân sách thành phố.
Dự án được UBND TP. Bà Rịa phê duyệt tại Quyết định số 6590 ngày 12/12/2023; giao Ban Quản lý dự án đầu tư xây dựng TP. Bà Rịa chịu trách nhiệm lựa chọn nhà thầu.
Theo Biên bản mở thầu đã công bố ngày 6/5/2024, gói thầu có 2 nhà thầu tham dự: Công ty CP Công nghệ xây dựng Solar Cons dự thầu với giá 5,219 tỷ đồng; Công ty TNHH Thương mại Xây dựng và Dịch vụ Khởi Nghiệp Mới dự thầu với giá 5,416 tỷ đồng.
Nếu chỉ nhìn vào giá đã được công khai tại Biên bản mở thầu trên Hệ thống mạng đấu thầu quốc gia, Công ty CP Công nghệ xây dựng Solar Cons đang có lợi thế hơn đối thủ khi dự thầu với giá 5,219 tỷ đồng
Năng lực các nhà thầu
Công ty CP Công nghệ xây dựng Solar Cons (địa chỉ Số 18 Đường 17, Khu phố 5, phường Linh Tây, TP. Thủ Đức, TP. HCM) thành lập năm 2010; người đại diện pháp luật là Nguyễn Quang Khoa.
Theo tìm hiểu của PV trên Hệ thống mạng đấu thầu quốc gia, từ năm 2014 đến nay, công ty đã được ghi nhận tham gia 59 gói thầu, trong đó trúng 56 gói, 2 gói chưa có kết quả. Tổng giá trị trúng thầu hơn 488,905 tỷ đồng (có hơn 10,612 tỷ đồng là các gói chỉ định thầu); trong đó với vai trò độc lập hơn 132,517 tỷ đồng, với vai trò liên danh hơn 356,387 tỷ đồng.
Theo dõi lịch sử tham gia đấu thầu, có thể thấy, mỗi năm, Công ty CP Công nghệ xây dựng Solar Cons trúng 9 - 15 gói thầu, chủ yếu tại TP. HCM, Bình Dương, Đồng Nai…
Riêng tại tỉnh Bà Rịa – Vũng Tàu, Gói thầu số 1 (xây lắp), phường Kim Dinh, thuộc Dự án Cải tạo, nâng cấp các tuyến hẻm, trên địa bàn các phường Kim Dinh, Long Hương, Phước Hiệp, Phước Hưng năm 2024, là gói thầu đầu tiên Công ty CP Công nghệ xây dựng Solar Cons tham dự.
![]() |
| Công ty CP Công nghệ xây dựng Solar Cons có trụ sở tại TP. Thủ Đức, TP. HCM (Nguồn: IT) |
Năm 2023, công ty là nhà thầu quen của một số chủ đầu tư với những gói thầu tiêu biểu:
Gói thầu thi công xây dựng, thuộc Dự án Nâng cấp, cải tạo đường Nguyễn Chí Thanh; Ban Quản lý dự án đầu tư xây dựng TP. Thuận An (tỉnh Bình Dương) đã phê duyệt liên danh Công ty CP Công nghệ xây dựng Solar Cons - Công ty TNHH Thương mại Xây dựng An Viên – Công ty TNHH Xây dựng – Thương mại Viễn Đông trúng thầu với giá 66.440.777.000 đồng (giá gói thầu 70.000.783.503 đồng), thực hiện trong 360 ngày, từ 28/12/2023.
Gói thầu thi công xây dựng, thuộc Dự án Xây dựng mới Văn phòng ấp Cầu Sắt, xã Lai Hưng; Ban Quản lý dự án đầu tư xây dựng khu vực huyện Bàu Bàng (tỉnh Bình Dương) đã phê duyệt Công ty CP Công nghệ xây dựng Solar Cons trúng thầu với giá 5.639.572.000 đồng (giá gói thầu 5.667.918.889 đồng), thực hiện trong 180 ngày, từ 31/7/2023…
Công ty TNHH Thương mại Xây dựng và Dịch vụ Khởi Nghiệp Mới (địa chỉ Số 35 Lê Long Vân, phường Long Tâm, TP. Bà Rịa, tỉnh Bà Rịa - Vũng Tàu) thành lập năm 2017; người đại diện pháp luật là Châu Thị Minh Trang.
![]() |
| Công ty TNHH Thương mại Xây dựng và Dịch vụ Khởi Nghiệp Mới có trụ sở tại TP. Bà Rịa, tỉnh Bà Rịa – Vũng Tàu. (Nguồn: IT) |
Theo tìm hiểu của PV, từ năm 2021 đến nay, công ty đã tham gia 26 gói thầu, trúng 18 gói. Tổng giá trị trúng thầu hơn 40,336 tỷ đồng; trong đó với vai trò độc lập hơn 30,523 tỷ đồng, với vai trò liên danh hơn 9,813 tỷ đồng.
Theo dõi lịch sử tham gia đấu thầu, có thể thấy, mỗi năm, Công ty TNHH Thương mại Xây dựng và Dịch vụ Khởi Nghiệp Mới trúng 5 - 8 gói thầu, chủ yếu tại các ban quản lý dự án đầu tư xây dựng tỉnh Bà Rịa – Vũng Tàu…
Gói thầu xây lắp số 1 (phường Kim Dinh), thuộc Dự án Cải tạo, nâng cấp các tuyến hẻm, trên địa bàn phường Kim Dinh, các phường Long Hương, Phước Hiệp, Phước Hưng năm 2024, đến nay vẫn chưa có kết quả lựa chọn nhà thầu, chưa biết đơn vị nào sẽ trúng thầu.
Tuy nhiên, nhìn cảm quan về giá, nhận thấy, Công ty CP Công nghệ xây dựng Solar Cons rõ ràng đang có lợi thế khi dự thầu với 5,219 tỷ đồng…


