Những đường cong mềm mại của ngôi nhà sau cải tạo

Những đường cong mềm mại của ngôi nhà sau cải tạo

Những đường cong làm nên những mảng miếng, khối dáng ăn ý nhịp nhàng và quyến rũ cho một căn nhà sau cải tạo ở Đài Loan.

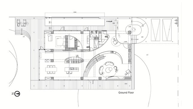
Căn nhà được cải tạo từ một ngôi nhà cổ truyền thống ở Hoa Liên, Đài Loan, với nguồn cảm hứng từ những đường cong của núi non và biển cả tại địa phương. Không chỉ giúp khéo léo che đi các góc cạnh vốn có của phần khung kết cấu, chi tiết đường cong còn tạo nên những mảng miếng, khối dáng ăn ý nhịp nhàng và là điểm nhấn thú vị trong không gian.
Căn nhà được cải tạo từ một ngôi nhà cổ truyền thống ở Hoa Liên, Đài Loan, với nguồn cảm hứng từ những đường cong của núi non và biển cả tại địa phương. Không chỉ giúp khéo léo che đi các góc cạnh vốn có của phần khung kết cấu, chi tiết đường cong còn tạo nên những mảng miếng, khối dáng ăn ý nhịp nhàng và là điểm nhấn thú vị trong không gian.
Bên cạnh nét hài hòa được tạo nên bởi những đường cong linh hoạt, kiến trúc tổng thể căn nhà cũng làm mờ đi ranh giới trong - ngoài, kết nối liền mạch với thiên nhiên và tối ưu ánh sáng mặt trời nhờ hệ cửa kính lớn từ sàn lên đến trần.
Bên cạnh nét hài hòa được tạo nên bởi những đường cong linh hoạt, kiến trúc tổng thể căn nhà cũng làm mờ đi ranh giới trong - ngoài, kết nối liền mạch với thiên nhiên và tối ưu ánh sáng mặt trời nhờ hệ cửa kính lớn từ sàn lên đến trần.
Căn nhà lấy tông be, nâu của gỗ làm chủ đạo, mang đến cảm giác thoải mái và ấm cúng. Một góc nhỏ trong căn bếp mở là nơi trưng bày các bộ sưu tập âm nhạc - nghệ thuật và cũng là góc ưa thích của gia chủ.
Căn nhà lấy tông be, nâu của gỗ làm chủ đạo, mang đến cảm giác thoải mái và ấm cúng. Một góc nhỏ trong căn bếp mở là nơi trưng bày các bộ sưu tập âm nhạc - nghệ thuật và cũng là góc ưa thích của gia chủ.
Không gian hài hòa với nhịp điệu của âm nhạc, ánh sáng và dòng chảy mềm mại từ những đường cong đem đến kết nối về mặt thị giác cũng như cảm xúc. Đó cũng chính là biểu hiện trọn vẹn nhất của một cuộc sống chất lượng.
Không gian hài hòa với nhịp điệu của âm nhạc, ánh sáng và dòng chảy mềm mại từ những đường cong đem đến kết nối về mặt thị giác cũng như cảm xúc. Đó cũng chính là biểu hiện trọn vẹn nhất của một cuộc sống chất lượng.