Nhà phố hướng Tây đặc biệt với phòng ngủ có góc nhìn siêu rộng

Nhà phố hướng Tây đặc biệt với phòng ngủ có góc nhìn siêu rộng

Kiến trúc sư sử dụng nhiều giải pháp cho nhà phố hướng tây với không gian bên trong chủ yếu là kính, phòng ngủ có góc nhìn rộng thoáng về ba hướng.

TA Home có kích thước 6,4 m x 14 m (90m2), nằm ở phía Bắc tỉnh Bắc Ninh do kiến trúc sư Nguyễn Đăng Tưởng (Kiến trúc NDT) thiết kế chính.
TA Home có kích thước 6,4 m x 14 m (90m2), nằm ở phía Bắc tỉnh Bắc Ninh do kiến trúc sư Nguyễn Đăng Tưởng (Kiến trúc NDT) thiết kế chính.
Chủ nhà là một gia đình trẻ với ba người con, một con gái và hai con trai.
Chủ nhà là một gia đình trẻ với ba người con, một con gái và hai con trai.
Họ mong muốn ngôi nhà có thể giúp các thành viên kết nối với nhau mọi lúc, mọi nơi, có nhiều không gian để thư giãn sau một ngày làm việc căng thẳng.
Họ mong muốn ngôi nhà có thể giúp các thành viên kết nối với nhau mọi lúc, mọi nơi, có nhiều không gian để thư giãn sau một ngày làm việc căng thẳng.
Hạn chế của lô đất là chiều sâu chỉ 14 m và mặt tiền chính hướng Tây Nam nhưng lại có lợi thế chiều rộng mặt tiền là 6,4 m.
Hạn chế của lô đất là chiều sâu chỉ 14 m và mặt tiền chính hướng Tây Nam nhưng lại có lợi thế chiều rộng mặt tiền là 6,4 m.
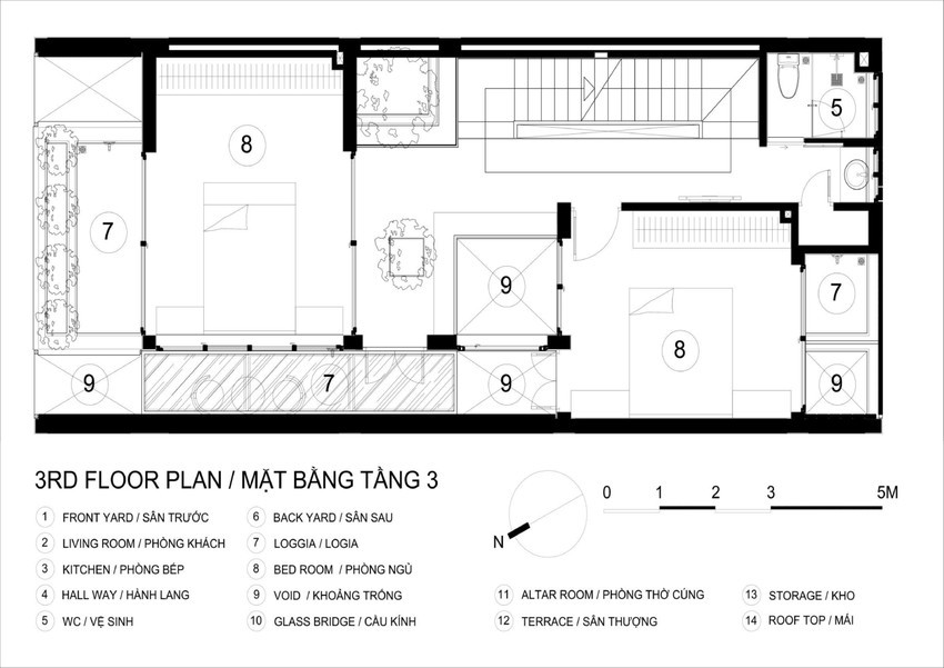
Ngôi nhà phố có bốn tầng với hai khối chức năng chính được liên kết với nhau qua cầu thang bộ và không gian nghỉ ngơi.
Ngôi nhà phố có bốn tầng với hai khối chức năng chính được liên kết với nhau qua cầu thang bộ và không gian nghỉ ngơi.
Phòng ngủ được bố trí ở tầng hai và ba. Tầng một phục vụ cho nhu cầu sử dụng chung và tầng bốn dành cho các hoạt động ngoài trời và có một vườn rau lớn để phục vụ gia đình.
Phòng ngủ được bố trí ở tầng hai và ba. Tầng một phục vụ cho nhu cầu sử dụng chung và tầng bốn dành cho các hoạt động ngoài trời và có một vườn rau lớn để phục vụ gia đình.
Lối vào phòng sảnh chính tầng một đi qua một hồ nước tạo điểm nhấn và mang lại sự thoải mái cho gia chủ.
Lối vào phòng sảnh chính tầng một đi qua một hồ nước tạo điểm nhấn và mang lại sự thoải mái cho gia chủ.
Kiến trúc sư đã tạo ra một khoảng không gian đệm bên sườn nhà để mở rộng tầm nhìn từ phía trong ngôi nhà.
Kiến trúc sư đã tạo ra một khoảng không gian đệm bên sườn nhà để mở rộng tầm nhìn từ phía trong ngôi nhà.
Từ đó tạo ra nhiều không gian ngoài trời ở các cao độ khác nhau và tăng hiệu quả thông gió, chiếu sáng tự nhiên.
Từ đó tạo ra nhiều không gian ngoài trời ở các cao độ khác nhau và tăng hiệu quả thông gió, chiếu sáng tự nhiên.
Khối công năng phía trước được lùi vào 2m để có ban công đua ra trồng cây tạo bóng mát giúp hạn chế nắng trực tiếp vào buổi trưa và chiều.
Khối công năng phía trước được lùi vào 2m để có ban công đua ra trồng cây tạo bóng mát giúp hạn chế nắng trực tiếp vào buổi trưa và chiều.
Kiến trúc sư chỉ bố trí mỗi tầng một phòng vệ sinh và vị trí có sự thay đổi từ tầng một lên tầng hai, ba. Do đó tạo ra sự biến đổi linh hoạt cho công năng từng tầng.
Kiến trúc sư chỉ bố trí mỗi tầng một phòng vệ sinh và vị trí có sự thay đổi từ tầng một lên tầng hai, ba. Do đó tạo ra sự biến đổi linh hoạt cho công năng từng tầng.
Một không gian nhỏ được thiết kế bồn rửa tay.
Một không gian nhỏ được thiết kế bồn rửa tay.
Lối dẫn vào các phòng chức năng.
Lối dẫn vào các phòng chức năng.
Các phòng chức năng trên các tầng có thể dễ dàng kết nối và quan sát.
Các phòng chức năng trên các tầng có thể dễ dàng kết nối và quan sát.
Bốn phòng ngủ trong nhà đều có từ 3-4 cửa để thông gió và lấy sáng tự nhiên, đây là điều cực hiếm ở trong các ngôi nhà ống tại Việt Nam.
Bốn phòng ngủ trong nhà đều có từ 3-4 cửa để thông gió và lấy sáng tự nhiên, đây là điều cực hiếm ở trong các ngôi nhà ống tại Việt Nam.
Tầng bốn được làm cao hơn các tầng dưới để tăng hiệu quả về thông gió. Người sử dụng ở tầng bốn sẽ ít cảm nhận được khí nóng ở phía trên mái do có khoảng cách lớn.
Tầng bốn được làm cao hơn các tầng dưới để tăng hiệu quả về thông gió. Người sử dụng ở tầng bốn sẽ ít cảm nhận được khí nóng ở phía trên mái do có khoảng cách lớn.