Mê mẩn căn nhà có cây xanh và lợp mái hiên bằng đất nung

Mê mẩn căn nhà có cây xanh và lợp mái hiên bằng đất nung

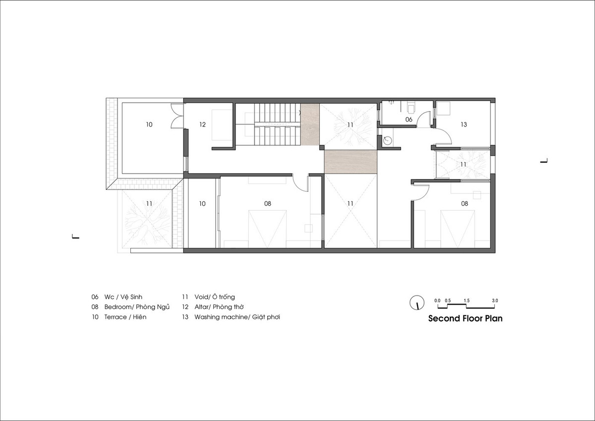
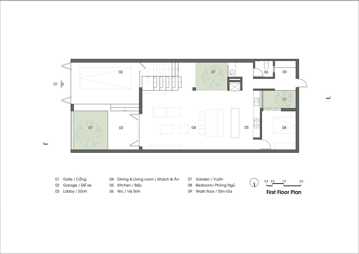
Căn nhà có nhiều vườn và không gian trống, tối đa hóa sự gắn kết giữa các thành viên sống bên trong. Tất cả hiên nhà ở phòng khách, phòng ngủ đều được phủ mái ngói bằng đất nung, một dạng mái truyền thống ở vùng nông thôn Việt Nam.

 Căn nhà được thiết kế cho một gia đình trẻ, với mong muốn kết hợp những yếu tố đơn giản và quen thuộc, giống như ngôi nhà nhỏ ở nông thôn nơi họ sinh ra và lớn lên.
Căn nhà được thiết kế cho một gia đình trẻ, với mong muốn kết hợp những yếu tố đơn giản và quen thuộc, giống như ngôi nhà nhỏ ở nông thôn nơi họ sinh ra và lớn lên.
Ngôi nhà có phong cách điển hình của một nhà ở liền kề, bị hạn chế về không gian mở cho những hoạt động.
Ngôi nhà có phong cách điển hình của một nhà ở liền kề, bị hạn chế về không gian mở cho những hoạt động.
Nhà thiết kế đề xuất giảm diện tích xây dựng để tạo ra nhiều không gian hơn. Từ đây, căn nhà có nhiều vườn và không gian trống, tối đa hóa sự gắn kết giữa các thành viên sống bên trong. Căn nhà linh hoạt, rộng mở và đa dạng, với nhiều không gian mở và thoáng khí.
Nhà thiết kế đề xuất giảm diện tích xây dựng để tạo ra nhiều không gian hơn. Từ đây, căn nhà có nhiều vườn và không gian trống, tối đa hóa sự gắn kết giữa các thành viên sống bên trong. Căn nhà linh hoạt, rộng mở và đa dạng, với nhiều không gian mở và thoáng khí.
Tất cả những hiên nhà ở phòng khách và phòng ngủ đều được phủ mái ngói bằng đất nung, một dạng mái truyền thống ở vùng nông thôn Việt Nam.
Tất cả những hiên nhà ở phòng khách và phòng ngủ đều được phủ mái ngói bằng đất nung, một dạng mái truyền thống ở vùng nông thôn Việt Nam.
Yếu tố lợp mái ngói thực tế bằng đất nung này là sự đơn giản mà gia chủ muốn cho căn nhà của mình.
Yếu tố lợp mái ngói thực tế bằng đất nung này là sự đơn giản mà gia chủ muốn cho căn nhà của mình.